Bifamiliare in vendita

Ranica, Via Borgosale
€ 940.000
8 locali 8 locali
230 Mq 230 Mq
2 bagni 2 bagni

Bifamiliare in vendita

Ranica, Via Borgosale

Descrizione annuncio

RANICA – Zona Borgosale

In una delle aree più prestigiose e ricercate di Ranica, ai piedi della collina e immersa nel verde della Maresana, proponiamo in vendita una splendida villa bifamiliare di recente costruzione, composta da due unità abitative indipendenti e da un ampio magazzino sottostante di circa 205 mq.

Edificata nel 2010 con materiali di pregio e un raffinato stile architettonico, la proprietà si distingue per l’eleganza delle finiture e la cura dei dettagli.
Il giardino privato di circa 500 mq circonda la villa su due lati, mentre sugli altri è presente lo scivolo carrale che conduce comodamente al piano seminterrato.

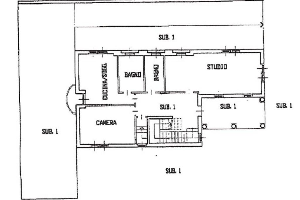
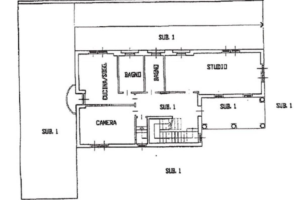
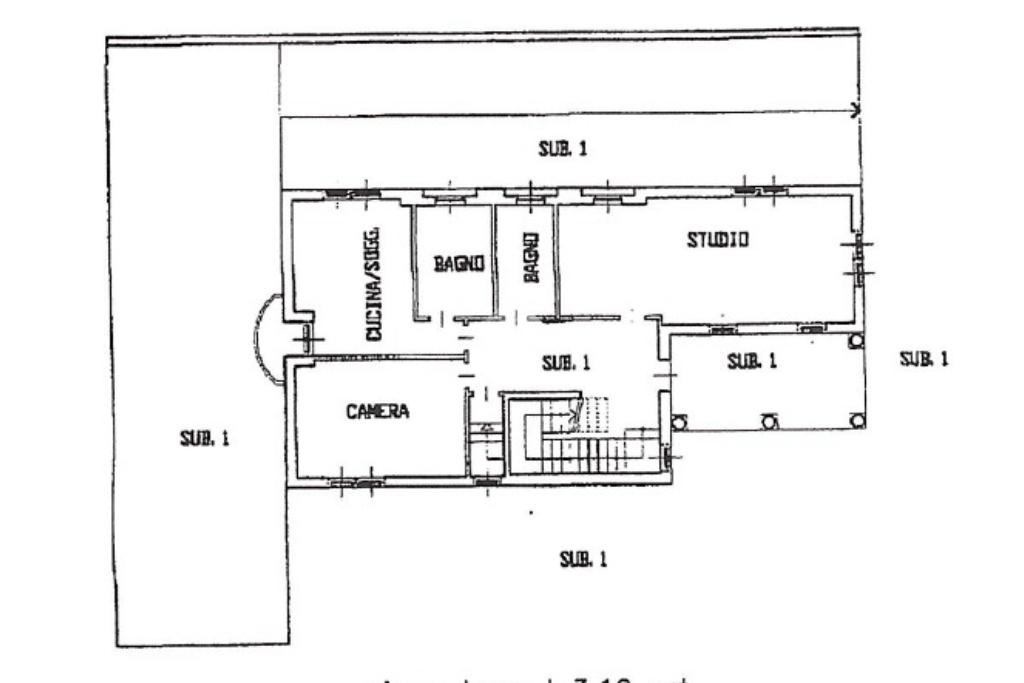
Un’elegante scala in marmo introduce al primo appartamento, situato al piano terra e composto da un’ampia e luminosa zona giorno, cucina abitabile, bagno finestrato e tre camere da letto.
Il piano superiore riprende la medesima disposizione interna, arricchita da una meravigliosa terrazza vivibile, caratterizzata da eleganti archi che incorniciano una suggestiva vista panoramica sul paese.

Al piano seminterrato troviamo spazi accessori di rara ampiezza: un magazzino di oltre 200 mq, perfetto per ospitare diverse autovetture, attrezzature o veicoli da lavoro. Completano la proprietà un box singolo, una stanza archivio/dispensa di circa 15 mq e posti auto coperti per 2-3 vetture.

Un immobile unico nel suo genere, sia per la generosità degli spazi che per il contesto esclusivo in cui è inserito.
Classe energetica C: particolare attenzione è stata riservata all’isolamento e alla scelta dei materiali, garantendo comfort e qualità abitativa.

Soluzione ideale per due nuclei familiari, per chi desidera vivere vicino ai propri cari (genitori e figli), oppure per chi necessita di ampi locali deposito o magazzino direttamente collegati all’abitazione.

Mostra tutto

Nelle vicinanze

Trasporto pubblico Trasporto pubblico
Alzano Centro
Alzano Centro
1,2 Km
Ranica
Ranica
1,4 Km
946
946
500 m
943
943
520 m
Ricariche auto elettriche Ricariche auto elettriche
Alzano Stadio | Ressolar
530 m
Ranica Oratorio S. Filippo Neri | Ressolar
920 m
Stazione TEB ALZANO Centro | ENELX
1,2 Km
Ranica Marconi | Ressolar
1,2 Km
Ranica Stazione TEB | EnelX
1,4 Km
Scuole Scuole
Scuola primaria “Antonio Tiraboschi”
610 m
Scuola media di Nese
850 m
Scuole
880 m
Scuola primaria
900 m
Scuolo secondaria "Maria Piazzoli"
1,0 Km
Farmacia Farmacia
Farmacia Bolzoni
470 m
Farmacia
1,1 Km
Farmacia San Martino
1,3 Km
Farmacia Pedrinelli
1,3 Km
Farmacia Alzano Sopra
1,7 Km
Ospedali Ospedali
Ospedale di Alzano Lombardo
970 m
Don Orione
2,6 Km
Pia Fondazione Piccinelli
2,8 Km
Avis
2,9 Km
Supermercati Supermercati
DPiù discount
920 m
MD
1,4 Km
Supermercati
1,4 Km
Esselunga di Nembro
2,6 Km
Aldi
2,7 Km
Negozi Negozi
Minimarket Sapienza pane e verdura
690 m
Trionfini
1,1 Km
Negozi
1,7 Km
Proposte Moda
1,7 Km
Minimarket Carefour- Brissoni
2,0 Km
Bar Bar
Caffèdicola67
490 m
BaRanga
770 m
Bar Torrette
1,2 Km
Barcicletta
1,4 Km
Bar delle piscine
1,5 Km
Ristoranti Ristoranti
Al Vecchio Tagliere
780 m
Locanda della Corte
1,1 Km
RistoFante
1,2 Km
Alla Bertonella
1,3 Km
Ristorante Pighet
1,3 Km
Mostra tutto

Caratteristiche

Rif.:
61139434
Piano:
2 di 2 (Piano su più livelli)
Box:
1
Posti auto:
10
Balconi:
1
Terrazzi:
1
Mostra tutto
Prezzo Prezzo
€ 940.000
Rata mutuo Rata mutuo
€ 4.429 / mese
Spese annue Spese annue
€ 0
Proponi il tuo prezzoProponi il tuo prezzo

Classe Energetica

C
C
C
C
C
C
C
C
C
EP globale non rinnovabile:
40.00 kW h/m² anno
EP globale rinnovabile:
40.00 kW h/m² anno
EP invernale del fabbricato:
EP estiva del fabbricato:
Anno di costruzione:
2010
Riscaldamento:
Autonomo
Tipo impianto:
A radiatori
Tipo alimentazione:
Metano

Ti interessa visionare l'immobile?

Fissa un appuntamento  Fissa un appuntamento

Richiedi informazioni

Clicca su Leggi per aprire l'informativa
* Questi campi sono obbligatori

Calcola il tuo mutuo

Semplice e senza impegno
Anticipo

( % )
Mutuo

( % )

pochi semplici passi

inserisci i tuoi dati
Questionario completato
Grazie per aver richiesto un appuntamento senza impegno con un nostro Consulente del Credito e Assicurativo.

Hai inserito correttamente tutti i dati necessari e a breve riceverai una e-mail con un link da convalidare per inviare i tuoi dati.
Affiliato
Agenzia Imm.re La Torre Srl
Via Donizetti, 5/C 24020 Torre Boldone (BG)

Il nostro staff


  • Anna Amato
    Affiliata

  • Luca Colombi
    Responsabile
Via Donizetti, 5/C 24020 Torre Boldone (BG)
Zona: Torre Boldone - Ranica
Mostra su mappa
Orari: da lunedì a venerdì: da 9.00 a 12.30/ 14.30 a 19:30. Sabato: da 9.00 a 12.30 / 14.30 a 18.00
Affiliato
Agenzia Imm.re La Torre Srl
Via Donizetti, 5/C 24020 Torre Boldone (BG)

2026 Tecnocasa Franchising S.p.A. - P. IVA 08365160152 - Via Monte Bianco 60/A 20089 Rozzano (MI). Ogni agenzia ha un proprio titolare ed è autonoma. Privacy policy | Policy utilizzo | Cookie policy