Quadrilocale in vendita

Torre Boldone, Via Giovanni Reich
€ 349.000
Prezzo aggiornato
4 locali 4 locali
127 Mq 127 Mq
2 bagni 2 bagni

Quadrilocale in vendita

Torre Boldone, Via Giovanni Reich

Descrizione annuncio

REDONA

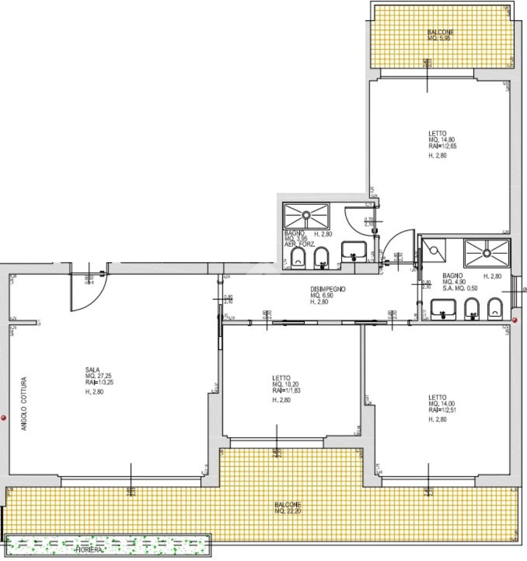
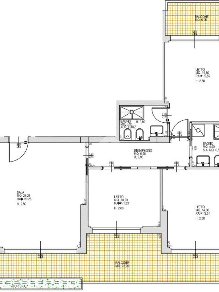
Nel cuore di Redona, in una zona residenziale tranquilla ma ottimamente servita, a pochi passi dalla TEB, dalle fermate dell’autobus e dai principali servizi, proponiamo in vendita un quadrilocale completamente ristrutturato, situato al terzo piano di una palazzina dotata di ascensore e giardino condominiale.

L’appartamento è la soluzione ideale per chi cerca ambienti moderni, funzionali e ben distribuiti. La composizione prevede ingresso, ampio soggiorno con angolo cottura, tre camere da letto, due bagni e due ampi terrazzi vivibili per un totale di circa 30 mq, ideali per momenti di relax all’aperto.

Gli spazi sono stati progettati per offrire luminosità e comfort, con finiture contemporanee e materiali di qualità: pavimento in gres porcellanato chiaro effetto pietra, serramenti in PVC con doppio vetro e tapparelle elettriche, porte interne bianche modello Quadra, controsoffitti con faretti, predisposizione per climatizzazione e impianto antintrusione. I bagni saranno dotati di sanitari sospesi, doccia, rubinetteria di design e predisposizione per lavatrice e asciugatrice.

L’intervento mira a garantire un buon livello di efficienza energetica, con classe energetica prevista B.

Completa la proprietà un box singolo al prezzo di €25.000.


Una soluzione moderna, spaziosa e pronta ad accogliere chi cerca uno stile di vita pratico, in un quartiere verde, ben servito e ottimamente collegato.

Mostra tutto

Nelle vicinanze

Trasporto pubblico Trasporto pubblico
Bergamo Martinella
Bergamo Martinella
210 m
Torre Boldone
Torre Boldone
370 m
351
351
130 m
356
356
170 m
Ricariche auto elettriche Ricariche auto elettriche
Torre Boldone Stazione TEB | EnelX
420 m
A2A BG Fast Corridoni
420 m
Torre Boldone Scuole | Ressolar
690 m
Torre Boldone Palazzolo | Ressolar
890 m
Bergamo Correnti | ENELX
910 m
Scuole Scuole
Scuola Primaria Parificata "Don Luigi Palazzolo"
480 m
Scuole
590 m
Scuola Secondaria Primo Grado "Petteni"
840 m
Scuola dell'infanzia
1,4 Km
Scuolo secondaria "Maria Piazzoli"
1,5 Km
Farmacia Farmacia
Farmacia
1,3 Km
Farmacia Dott. Grassi
1,6 Km
Farmacia Mandelli
2,2 Km
Via Borgo Palazzo
2,4 Km
Farmacia Borgo Palazzo
2,5 Km
Ospedali Ospedali
Don Orione
770 m
Avis
1,5 Km
Casa di Cura Privata Villa Santa Apollonia
1,9 Km
Pia Fondazione Piccinelli
2,3 Km
Ospedale di Alzano Lombardo
2,6 Km
Supermercati Supermercati
MD
1,2 Km
Esselunga di Via Corridoni
1,3 Km
Despar
1,8 Km
Penny
1,8 Km
Italmark
2,2 Km
Negozi Negozi
La Bottegsa Alpina
1,4 Km
Panificio Bellini
1,7 Km
Panetteria Del Borgo
1,7 Km
Prestige Moda
1,8 Km
maniMpasta
1,8 Km
Bar Bar
Bar Pesa
170 m
Bar Happy 3
480 m
Bar
480 m
Edonè
900 m
La Luna Bianca
940 m
Ristoranti Ristoranti
Ristoranti
100 m
Pizzeria Vecchio Forno
570 m
La Cantinaccia
1,0 Km
Ristorante Papillon
1,1 Km
Don Luis
1,2 Km
Mostra tutto

Caratteristiche

Rif.:
61202414
Piano:
3 di 3 con ascensore (Piano alto)
Box:
1
Balconi:
1
Terrazzi:
1
Camere da letto:
3
Mostra tutto
Prezzo Prezzo
€ 349.000
Prezzo box Prezzo box
€ 25.000
Rata mutuo Rata mutuo
€ 1.654 / mese
Spese annue Spese annue
€ 1.500
Proponi il tuo prezzoProponi il tuo prezzo

Classe Energetica

B
B
B
B
B
B
B
B
B
EP globale non rinnovabile:
111.00 kW h/m² anno
EP globale rinnovabile:
111.00 kW h/m² anno
EP invernale del fabbricato:
EP estiva del fabbricato:
Anno di costruzione:
1977
Riscaldamento:
Centralizzato
Tipo impianto:
A radiatori
Tipo alimentazione:
Metano

Prezzo ridotto di €1 (3%%)

Ti interessa visionare l'immobile?

Fissa un appuntamento  Fissa un appuntamento

Richiedi informazioni

Clicca su Leggi per aprire l'informativa
* Questi campi sono obbligatori

Calcola il tuo mutuo

Semplice e senza impegno
Anticipo

( % )
Mutuo

( % )

pochi semplici passi

inserisci i tuoi dati
Questionario completato
Grazie per aver richiesto un appuntamento senza impegno con un nostro Consulente del Credito e Assicurativo.

Hai inserito correttamente tutti i dati necessari e a breve riceverai una e-mail con un link da convalidare per inviare i tuoi dati.
Affiliato
Agenzia Imm.re La Torre Srl
Via Donizetti, 5/C 24020 Torre Boldone (BG)

Il nostro staff


  • Anna Amato
    Affiliata

  • Rim Abdelkader
    Collaboratrice

  • Devid Baggi
    Collaboratore

  • Luca Colombi
    Responsabile
Via Donizetti, 5/C 24020 Torre Boldone (BG)
Zona: Torre Boldone - Ranica
Mostra su mappa
Orari: da lunedì a venerdì: da 9.00 a 12.30/ 14.30 a 19:30. Sabato: da 9.00 a 12.30 / 14.30 a 18.00
Affiliato
Agenzia Imm.re La Torre Srl
Via Donizetti, 5/C 24020 Torre Boldone (BG)

2026 Tecnocasa Franchising S.p.A. - P. IVA 08365160152 - Via Monte Bianco 60/A 20089 Rozzano (MI). Ogni agenzia ha un proprio titolare ed è autonoma. Privacy policy | Policy utilizzo | Cookie policy