Villa a schiera d'angolo in vendita

Torre Boldone, Via T. Tasso
€ 439.000
5 locali 5 locali
220 Mq 220 Mq
2 bagni 2 bagni

Villa a schiera d'angolo in vendita

Torre Boldone, Via T. Tasso

Descrizione annuncio

TORRE BOLDONE:

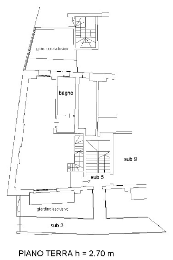
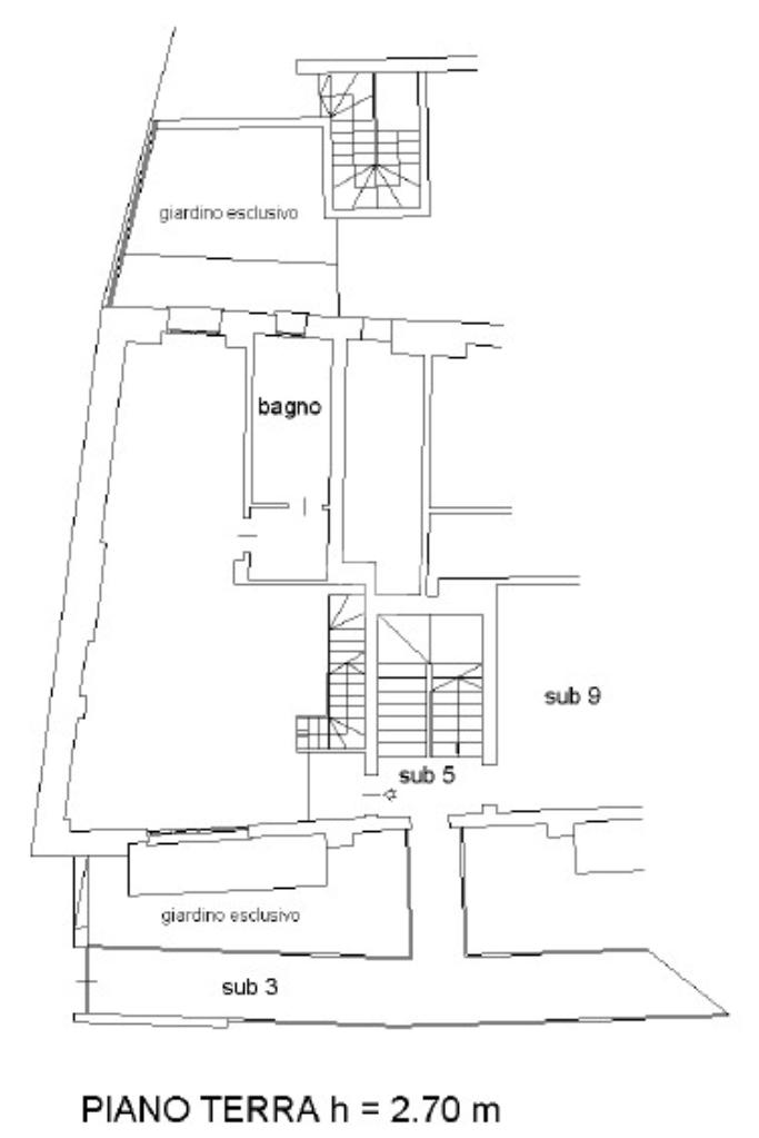
All’interno di un affascinante cascinale completamente restaurato nel 2009, nel pieno centro del paese di Torre Boldone, proponiamo elegante villa a schiera di testa, disposta su due livelli oltre a soppalco, che unisce raffinatezza e buon gusto grazie alle ottime finiture interne ed esterne, senza rinunciare agli spazi, perfettamente dislocati all’interno dell’immobile.

La soluzione, che ha subito una recente ristrutturazione interna nel 2019, è disposta come segue: al piano terra ci accoglie una spaziosa e luminosa zona giorno openspace, che suddivide ottimamente la zona living, zona pranzo e cucina abitabile. Da questi ambienti è possibile l’uscita verso le due aree esterne fronte retro, ben esposte al sole; troviamo poi un disimpegno ed un primo bagno finestrato dotato di doccia.

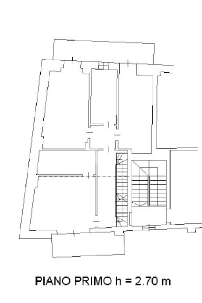
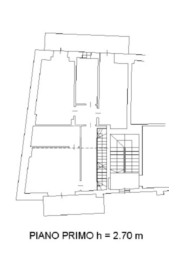
Un’elegante scala ci conduce al piano primo, dove troviamo la camera matrimoniale con cabina armadio, un disimpegno, una camera doppia ed una camera singola, oltre al secondo bagno sempre finestrato e con doccia. Anche dalla zona notte è possibile l’uscita verso le due terrazze fronte retro.

A completare la soluzione troviamo al piano sottotetto, con travi a vista, un grazioso soppalco aperto di buona metratura, ideale per chi necessita di zona ufficio o in alternativa di un ambiente relax.

Tutte le finestre sono dotate di zanzariere e di inferriate; gli ambienti sono climatizzati ed è presente l’allarme su tutti i piani con contatti su griglie esterne e finestre interne. Tendone da sole in soggiorno. Riscaldamento a pavimento.

Completano la proprietà due box singoli al piano interrato.

Mostra tutto

Nelle vicinanze

Trasporto pubblico Trasporto pubblico
Torre Boldone
Torre Boldone
310 m
Bergamo Martinella
Bergamo Martinella
770 m
596
596
180 m
163
163
180 m
Ricariche auto elettriche Ricariche auto elettriche
Torre Boldone Stazione TEB | EnelX
260 m
Torre Boldone Palazzolo | Ressolar
390 m
Torre Boldone Scuole | Ressolar
610 m
Ranica Marconi | Ressolar
990 m
A2A BG Fast Corridoni
1,0 Km
Scuole Scuole
Scuola Primaria Parificata "Don Luigi Palazzolo"
480 m
Scuole
540 m
Scuola dell'infanzia
1,0 Km
Scuolo secondaria "Maria Piazzoli"
1,0 Km
Scuola primaria
1,2 Km
Farmacia Farmacia
Farmacia
1,5 Km
Farmacia Gallerani
2,0 Km
Farmacia Dott. Grassi
2,2 Km
Farmacia Bolzoni
2,2 Km
Farmacia San Martino
2,5 Km
Ospedali Ospedali
Don Orione
1,3 Km
Pia Fondazione Piccinelli
1,8 Km
Avis
2,0 Km
Ospedale di Alzano Lombardo
2,1 Km
Casa di Cura Privata Villa Santa Apollonia
2,4 Km
Supermercati Supermercati
MD
1,2 Km
Esselunga di Via Corridoni
1,9 Km
Italmark
2,2 Km
Iperal Scanzorosciate
2,3 Km
Penny
2,4 Km
Negozi Negozi
Panetteria Del Borgo
1,5 Km
Eurospin
1,8 Km
Minimarket Carefour- Brissoni
1,8 Km
Negozi
1,8 Km
La Bottegsa Alpina
2,0 Km
Bar Bar
Bar Happy 3
170 m
Bar
430 m
Bar Pesa
770 m
Bar Torrette
1,0 Km
BaRanga
1,3 Km
Ristoranti Ristoranti
Ristoranti
600 m
Ristorante La Patta
820 m
Pizzeria Vecchio Forno
1,2 Km
Don Luis
1,2 Km
Ristorante Papillon
1,3 Km
Mostra tutto

Caratteristiche

Rif.:
61148334
Piano:
Su più livelli di 2
Totale piani:
2
Box:
2
Terrazzi:
2
Camere da letto:
4
Mostra tutto
Prezzo Prezzo
€ 439.000
Rata mutuo Rata mutuo
€ 2.069 / mese
Spese annue Spese annue
€ 4.800
Proponi il tuo prezzoProponi il tuo prezzo

Classe Energetica

C
C
C
C
C
C
C
C
C
EP globale non rinnovabile:
112.00 kW h/m² anno
EP globale rinnovabile:
112.00 kW h/m² anno
EP invernale del fabbricato:
EP estiva del fabbricato:
Anno di costruzione:
2010
Riscaldamento:
Centralizzato
Tipo impianto:
A pavimento
Tipo alimentazione:
Metano

Ti interessa visionare l'immobile?

Fissa un appuntamento  Fissa un appuntamento

Richiedi informazioni

Clicca su Leggi per aprire l'informativa
* Questi campi sono obbligatori

Calcola il tuo mutuo

Semplice e senza impegno
Anticipo

( % )
Mutuo

( % )

pochi semplici passi

inserisci i tuoi dati
Questionario completato
Grazie per aver richiesto un appuntamento senza impegno con un nostro Consulente del Credito e Assicurativo.

Hai inserito correttamente tutti i dati necessari e a breve riceverai una e-mail con un link da convalidare per inviare i tuoi dati.
Affiliato
Agenzia Imm.re La Torre Srl
Via Donizetti, 5/C 24020 Torre Boldone (BG)

Il nostro staff


  • Anna Amato
    Affiliata

  • Luca Colombi
    Responsabile
Via Donizetti, 5/C 24020 Torre Boldone (BG)
Zona: Torre Boldone - Ranica
Mostra su mappa
Orari: da lunedì a venerdì: da 9.00 a 12.30/ 14.30 a 19:30. Sabato: da 9.00 a 12.30 / 14.30 a 18.00
Affiliato
Agenzia Imm.re La Torre Srl
Via Donizetti, 5/C 24020 Torre Boldone (BG)

2026 Tecnocasa Franchising S.p.A. - P. IVA 08365160152 - Via Monte Bianco 60/A 20089 Rozzano (MI). Ogni agenzia ha un proprio titolare ed è autonoma. Privacy policy | Policy utilizzo | Cookie policy